c.Restaurering og transformering af gamle bygninger

Opdateret 30. juli 2023

Tegnestuen yder rådgivning i alle byggeriets faser, herunder også restaurering og transformering af gamle ejendomme og bygninger. Restaurering, ombygninger og transformering i forbindelse med etablering af nye funktioner, energioptimering mv. til fremtidens bruger.

Vi rådgiver i forbindelse med udvikling af gamle og bevaringsværdige ejendomme, med en bæredygtig tilgang og erfaring. Vi rådgiver under hensyn til en bygningens historie- og bygningsmæssige sammenhænge. I forhold til byplanforhold under en bæredygtig tilgang til ny bebyggelse, udnyttelse, beliggenhed og arkitektoniske muligheder i den gammel ejendom med brugen af nye- og genanvendelse af bygningsmaterialer.

Arkitektur i forbindelse gamle bygninger og bygningsmiljøer

– Ved at genskabe arkitektonisk værdi – Ved en bæredygtig transformering af gamle bygninger der underbygge nye funktioner – Restaurering der kan fastholde og tiltrækker mennesker og bidrager til fællesskab – Ved en bæredygtig restaurering i udsøgte naturlige materialer – Således at bygninger kan patinere smukt i harmoni med den gamle bygning.

FN verdensmål, med fokus på: 3) – Sikre god luft, lys og lyd. – 7) – optimering af energiforbrug pr.m2
. – 12) – effektiv udnyttelse af bygningsarealer – 13) – co2 regnskab energi- og ressourceforbrug.

Eksempler:

Bygninger til skoler / institutioner

Bygning til erhverv og boliger Byfornyelse i Helsingør

Industribygning kulturværftet Transformering i Helsingør.

Bygninger til almene boliger. Almen vejledning

KRARUP HANSEN & CO. ARKITEKTER M.A.A. STJERNEGADE 5 3000 HELSINGØR TLF.: 4922 0406 WEB: KH-CO.DK

c.Restaurering og transformering af gamle bygninger

Opdateret 30. juli 2023

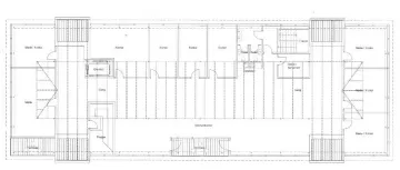
Ny bygning til BAllerup Ny Skole

Transformering af Ballerup Ny Skole over flere etaper fra 2013 – 2018 med ny indskoling, industrikøkken, lærerfaciliteter og ombyg. af lokaler for ældste klasser.

KRARUP HANSEN & CO. ARKITEKTER M.A.A. STJERNEGADE 5 3000 HELSINGØR TLF.: 4922 0406 WEB: KH-CO.DK

c.Restaurering og transformering af gamle bygninger

Opdateret 30. juli 2023

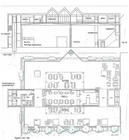
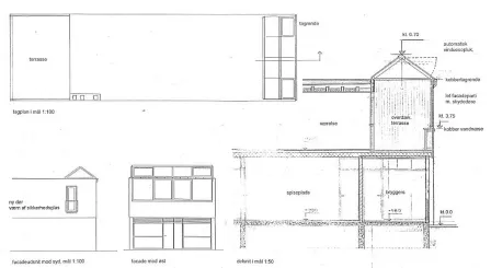
Kulturværftet i Helsingør. Transformering af taget til resturant og udsigt til Kronborg. Projekt udført i 2020.

KRARUP HANSEN & CO. ARKITEKTER M.A.A. STJERNEGADE 5 3000 HELSINGØR TLF.: 4922 0406 WEB: KH-CO.DK

c.Restaurering og transformering af gamle bygninger

Opdateret 30. juli 2023

Gefionsparken Helsingør. Transformering, renovering og energioptimering af almene boliger.
Registrering, brugerdialog, forslag og Helhedsplan udarbejdet i perioden 2013 – 2019.

KRARUP HANSEN & CO. ARKITEKTER M.A.A. STJERNEGADE 5 3000 HELSINGØR TLF.: 4922 0406 WEB: KH-CO.DK

c.Restaurering og transformering af gamle bygninger

Opdateret 30. juli 2023

Tønder rådhus. Transformering, Transformering, udvidelse, renovering og energioptimering af rådhuset. Udarbejdet i 2013.

KRARUP HANSEN & CO. ARKITEKTER M.A.A. STJERNEGADE 5 3000 HELSINGØR TLF.: 4922 0406 WEB: KH-CO.DK

c.Restaurering og transformering af gamle bygninger

Opdateret 30. juli 2023

Emiliekildevej 15 i Charlottenlund, Ombygning i tre etaper Ombygning af altan inddækning med glastag mv. Indretning af aftægtsbolig og ombygninger ejendommen.
Projektering og udførelse i perioden 2005 – 2009.

KRARUP HANSEN & CO. ARKITEKTER M.A.A. STJERNEGADE 5 3000 HELSINGØR TLF.: 4922 0406 WEB: KH-CO.DK

c.Restaurering og transformering af gamle bygninger

Opdateret 30. juli 2023

Dyssegårdsskolen i Gentofte. Renovering og enrgioptimering af ovenlyset over hovedtrappen. Projektering, byggeledelse og tilsyn udført i 2012.

KRARUP HANSEN & CO. ARKITEKTER M.A.A. STJERNEGADE 5 3000 HELSINGØR TLF.: 4922 0406 WEB: KH-CO.DK

c.Restaurering og transformering af gamle bygninger

Opdateret 30. juli 2023

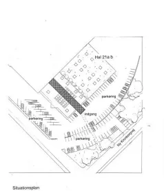
Renell Haderslev Vej 18 i Helsingør. Transformering af eks. Administrationsbygning med indretning af loftrum til adm. samt forslag til ny lagergerbygning til udlejning i mindre enheder. Forslag, udvikling, – og myndighedsbehandling udført i 2012.

KRARUP HANSEN & CO. ARKITEKTER M.A.A. STJERNEGADE 5 3000 HELSINGØR TLF.: 4922 0406 WEB: KH-CO.DK