b.udvikling af arkitektur på bygningsniveau

Opdateret 30. juli 2023

Tegnestuen yder rådgivning i alle byggeriets faser, og vores kærneområde er arbejdet med udvikling af nye bygninger. Udvikling af nye bygninger for mennesker, hvor form, funktion og konstruktioner udvikles bæredygtigt med fokus på en minimal co2 udledning under byggeriet og efterfølgende bygningsdrift.

Krarup Hansen & Co. udfører rådgivning i tæt kontakt med klienten, ingeniører og andre parter, for at sikre at arkitekturen lever op kundens ambitioner og krav og for at sikre et poetisk arkitektonisk greb.

God arkitektur

– Der skaber værdi – Byggeri der tiltrækker mennesker og bidrager til fællesskab – I udsøgte naturlige materialer – At der anvendes bygningskonstruktioner og materialer der kan patinere smukt.

FN verdensmål, med fokus på: 3) – Sikre god luft, lys og lyd. – 7) – Optimering af energiforbrug pr.m2
. – 12) – effektiv udnyttelse af bygningsarealer – 13) – co2 regnskab energi- og ressourceforbrug.

Et par eksempler:

KRARUP HANSEN & CO. ARKITEKTER M.A.A. STJERNEGADE 5 3000 HELSINGØR TLF.: 4922 0406 WEB: KH-CO.DK

b.udvikling af arkitektur på bygningsniveau

Opdateret 30. juli 2023

Perspektiv set fra Trækbanen

Stade juni 2021

Situationsplan

Erhverv på stue og parterreetager

Rosenkildevej 4. Igangværende sag, udvikling af nyt byhus i Helsingør Bykerne med erhverv og 8 nye boliger. Under opførelse og ibrugtages forår 2022.

KRARUP HANSEN & CO. ARKITEKTER M.A.A. STJERNEGADE 5 3000 HELSINGØR TLF.: 4922 0406 WEB: KH-CO.DK

b.udvikling af arkitektur på bygningsniveau

Opdateret 30. juli 2023

Teglværksbakken i Ålsgårde, privat boligbebyggelse med 34 boliger i to etager, ibrugtaget 2020, udvikling og projektering i perioden 2016 – 2019.

KRARUP HANSEN & CO. ARKITEKTER M.A.A. STJERNEGADE 5 3000 HELSINGØR TLF.: 4922 0406 WEB: KH-CO.DK

b.udvikling af arkitektur på bygningsniveau

Opdateret 30. juli 2023

Forslag til nyt byhus med boliger i Helsingør indpasset på gammel grund, hul i karrenen i Sct. Annea Gade. Udvikling og projektering i 2015 – 2022.

KRARUP HANSEN & CO. ARKITEKTER M.A.A. STJERNEGADE 5 3000 HELSINGØR TLF.: 4922 0406 WEB: KH-CO.DK

b.udvikling af arkitektur på bygningsniveau

Opdateret 30. juli 2023

Forslag til små billige og flekssible almene boliger i Helsingør indpasset på rest-grunde særligt i forbindelse med almene boligbebyggelser, udvikling og projektering i 2016.

KRARUP HANSEN & CO. ARKITEKTER M.A.A. STJERNEGADE 5 3000 HELSINGØR TLF.: 4922 0406 WEB: KH-CO.DK

b.udvikling af arkitektur på bygningsniveau

Opdateret 30. juli 2023

Rønnedalen i Helsingør. Udvikling og transformering af almen boligbebyggelse med ideoplæg, projektforslag til nye boliger indpasset i gammel bebyggelse, udvikling og projektering i perioden 2015 – 2018.

KRARUP HANSEN & CO. ARKITEKTER M.A.A. STJERNEGADE 5 3000 HELSINGØR TLF.: 4922 0406 WEB: KH-CO.DK

b.udvikling af arkitektur på bygningsniveau

Opdateret 30. juli 2023

Udvikling af enfamiliehuse, klyngehuse mv. Udvikling i forhold til bæredygtigt byggeri med blandt andet passiv energi og miljø.

KRARUP HANSEN & CO. ARKITEKTER M.A.A. STJERNEGADE 5 3000 HELSINGØR TLF.: 4922 0406 WEB: KH-CO.DK

b.udvikling af arkitektur på bygningsniveau

Opdateret 30. juli 2023

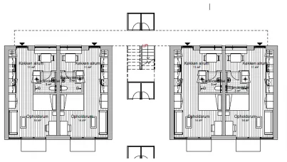
Familieboliger med erhverv, i Espergærde 2017.

Familieboliger med erhverv i underetagen, i Espergærde 2017.

Udvikling og design af en familie og flere familieboliger med og uden erhvervsfunktioner, aktuel sag i Espergærde området i 2017.

KRARUP HANSEN & CO. ARKITEKTER M.A.A. STJERNEGADE 5 3000 HELSINGØR TLF.: 4922 0406 WEB: KH-CO.DK

b.udvikling af arkitektur på bygningsniveau

Opdateret 30. juli 2023

Teglværksbakken i Ålsgårde. Udvikling, projektering af privat boligbebyggelse, ibrugtaget i 2020.

KRARUP HANSEN & CO. ARKITEKTER M.A.A. STJERNEGADE 5 3000 HELSINGØR TLF.: 4922 0406 WEB: KH-CO.DK

b.udvikling af arkitektur på bygningsniveau

Opdateret 30. juli 2023

Krudttårnsbakken i Frederiksværk
Krudttårnsbakken i Frederiksværk. Udvikling og projektering af privat boligbebyggelse, udført i perioden 2003 – 2009,
Etape 1. opført og ibrugtaget i 2003.

KRARUP HANSEN & CO. ARKITEKTER M.A.A. STJERNEGADE 5 3000 HELSINGØR TLF.: 4922 0406 WEB: KH-CO.DK